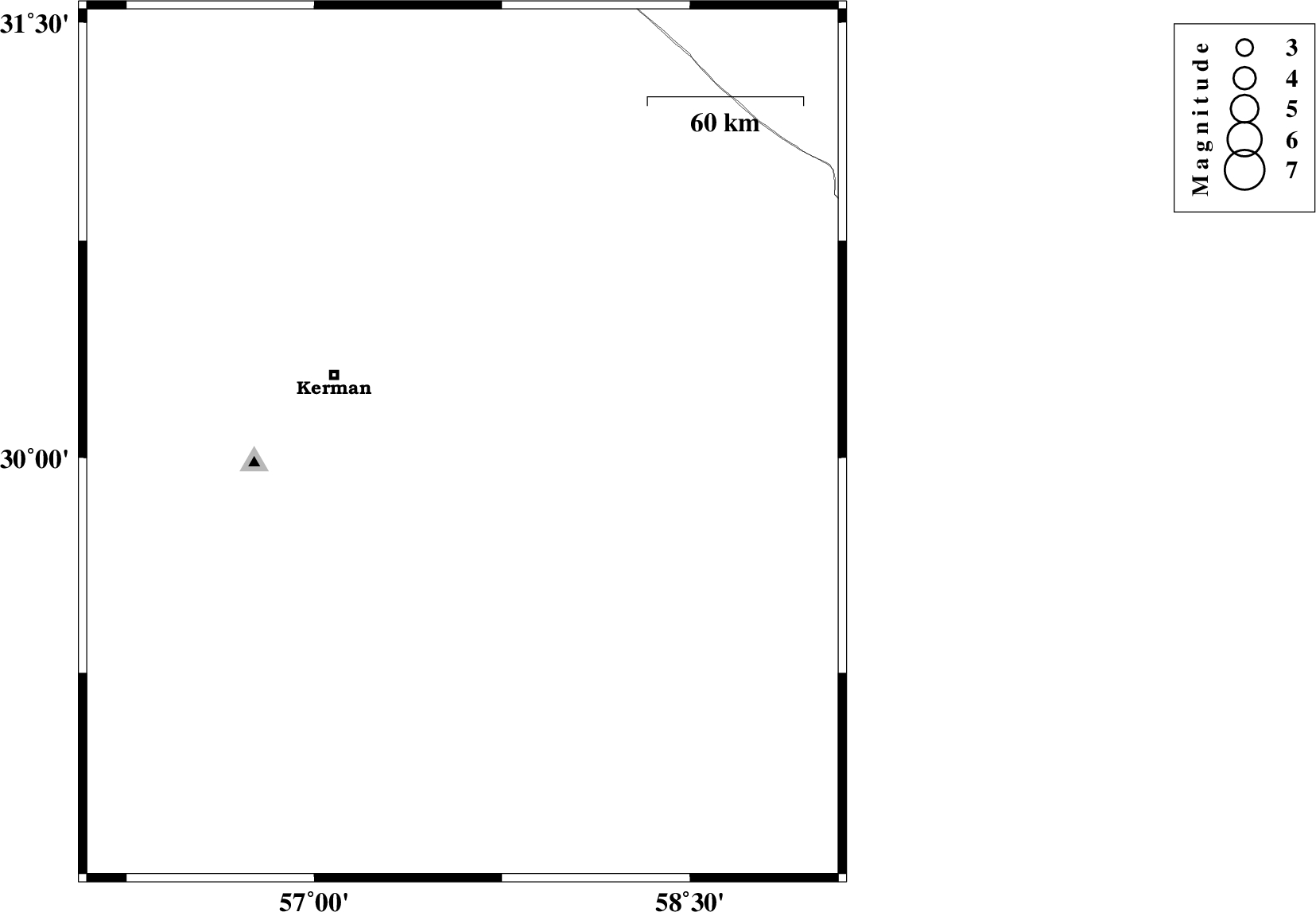
Recent Earthquakes

 Map Region : lat:28.546-31.546  lon:56.092-59.092

  North  
West   East
  South  
Show Cities
Show Foreign Cities
Show Fault Mechanism
Show Province Boundaries
Show Stations
Map Title

Get Ascii Data in Format : List Seisan GSE2.0
Prel. Rep.DateTime(UTC)Time(Local)Lat.Lon.DepthMag.RegionWaveform
2015/11/07 17:12:22.5 20:42:22.5 30.04657.5926 ML:2.7 Kerman Province, 56 km South-East of Kerman
2015/11/05 16:00:58.5 19:30:58.5 31.27957.58514 ML:2.5 Kerman Province, 73 km -East of Ravar
2015/11/04 10:04:23.9 13:34:23.9 31.18656.7118 ML:3 Kerman Province, 13 km -West of Ravar
2015/11/03 23:20:31.5 02:50:31.5 30.60157.41714 ML:2.6 Kerman Province, 48 km North-East of Kerman
2015/11/02 00:27:59.3 03:57:59.3 30.90356.50114 ML:2.8 Kerman Province, 12 km of Zarand
2015/10/31 20:52:16.7 00:22:16.7 30.91656.51414 ML:2.8 Kerman Province, 13 km North of Zarand
2015/10/31 17:12:59.8 20:42:59.8 28.91358.70614 ML:3 Kerman Province, 40 km South-East of Bam